Skip to main content

Exploring the Architecture of Place in America’s Farmers Markets: Chapter 2: Heritage Building Markets

Exploring the Architecture of Place in America’s Farmers Markets
Chapter 2: Heritage Building Markets
  • Show the following:

    Annotations
    Resources
  • Adjust appearance:

    Font
    Font style
    Color Scheme
    Light
    Dark
    Annotation contrast
    Low
    High
    Margins
  • Search within:
    • Notifications
    • Privacy
  • Project HomeExploring The Architecture of Place in America's Farmers Markets
  • Projects
  • Learn more about Manifold

Notes

table of contents
  1. Cover Page
  2. Halftitle Page
  3. Title Page
  4. Copyright Page
  5. Table of Contents
  6. Dedication
  7. Preface
  8. Introduction: Meet Me at the Farmers Market
  9. Chapter 1: Food with a Face
  10. Chapter 2: Heritage Building Markets
    1. Eastern Market: Washington, DC
    2. Findlay Market: Cincinnati, Ohio
  11. Chapter 3: Open-Air Pavilion Markets
    1. Abingdon
    2. Durham
    3. Covington
  12. Chapter 4: Pop-Up Canopy Markets
    1. Alexandria
    2. Charlottesville
    3. Staunton
  13. Chapter 5: Mobile Markets & Urban Farms
  14. Conclusion: A Sense of Place, A Sense of Time
  15. Notes
  16. Image Credits
  17. Works Cited
  18. Suggested Readings
  19. Websites Cited
  20. Index
  21. Author Bio

CHAPTER
2

HERITAGE BUILDING
MARKETS

EASTERN MARKET BEGAN as a public market in the nineteenth century and remains a beloved Capitol Hill landmark in Washington, DC (see image 2.1). The building initially gained this status for the beauty of its design—intricately detailed brick walls with Romanesque arched portals invite shoppers inside a cathedral-like space with sunlight streaming through its circular clerestory windows onto an abundance of displays of produce, vases of fresh-cut flowers, trays of handmade sausages, and stacks of just-baked breads (see image 2.2). I had the pleasure of shopping there regularly for the four years that I lived on 7th Street in a three-story brick Federal-style townhouse built in 1872.

View from 7th Street circa 1914. Many carriages/buggies are parked in front of a large building.
Image 2.1 View from 7th Street circa 1914.
Interior of Eastern Market after renovation 2009. Several patrons are stopped at very stalls looking at the products. A lot of natural light coming thorugh the windows and skylights.
Image 2.2 Interior of Eastern Market after renovation 2009.

One of my neighbors told me that this densely populated district had sustained Eastern Market for over a century; locals have shopped there since 1873. Today, on Saturdays from early summer to late fall, over five thousand people shop at Eastern Market, many of whom live in or near the neighborhood. Most of the buildings that comprise Capitol Hill are distinctive in their cohesive residential style and modulation that define the streets (see image 2.3). Three-story brick townhouses, eighteen feet wide, dominate the intermittent two-story clapboard, somewhat wider, houses. The solidly built brick residences with front stoops and wrought-iron fenced front yards were constructed during the Victorian era, 1837–1901. Other buildings of similar type and materials contain shops, stores, restaurants, and bars on the ground level with residences on the second and third levels. One can also see more recent schools, and civic and religious buildings as well as small public parks.

Figure ground plan of blocks surrounding Capitol Hill’s Eastern Market. A colored square highlights the market on the street view.
Image 2.3 Figure ground plan of blocks surrounding Capitol Hill’s Eastern Market.

Eastern Market is an example of what I call a heritage building market, for its cultural value and its contribution to the architectural legacy of civic buildings. Historians refer to this type of building as a market house (in contrast to a less distinguished building type of the times—a shed or what we term a pavilion today), and most were built in the nineteenth century during an era of progressive regulations and new construction of municipally inspired and regulated food markets in the United States. Public markets were places where people of varying societal status could find fresh, healthy food at affordable prices while simultaneously enabling farmers to sell their harvest or handmade food merchandise. The term “heritage” refers to the fact that vendors at this type of public food market often come from families that have been part of the market for generations. For instance, at Lancaster, PA’s Central Market vendors have included their seniority-status stalls in their wills for more than two centuries so that their beneficiaries can continue to sell at this treasured public market.

The decision to build a market house demanded careful deliberation on the part of local government because the resulting building would be a city landmark meant to exemplify civic pride and validate a community’s view of itself.1 The decision-making process was complex in that it required government leaders to consider a range of factors: site, financing, public support, simplicity and flexibility in design, and a location convenient to buyers and sellers. To proceed with construction, it was necessary to gain the approval of the leaders and citizens of the neighborhood and governing district. The importance of steady and lasting community commitment and consensus cannot be overestimated, as it is ultimately what saved from demolition both of the markets featured in this chapter. Without collective allegiance stemming from each market’s prominence and value as cultural icon, neither would have survived.

Market houses in America followed the European public market model, particularly in regards to their situation within a municipality as an essential part of the public infrastructure and civic culture. They were centrally located within a downtown or surrounding neighborhood with easy access to primary roads and waterways. These buildings existed as a hub for the town’s social interactions and commercial transactions. The daily necessity of obtaining fresh food was inseparable from the collective activities of urban living. Parades began or ended at the market; politicians held debates there. The significance of a market’s location ensured a renowned place for public ritual and ceremony.

Two public and farmers markets that remain open and thriving today serve as case studies for this chapter: Washington, DC’s Eastern Market and Cincinnati, OH’s Findlay Market. Both of these markets were built in the 1800s and remain situated within neighborhoods comprised of well-built residences crafted by hard-working, highly skilled immigrant populations of the times. These seminal examples illustrate that Eastern and Findlay Markets provide the neighborhoods of Capitol Hill and Over-the-Rhine, respectively, with a place of community gathering and civic interaction, as evidenced by numerous and diverse annual cultural celebrations and food-themed festivities throughout the year. In these ways these buildings imbue tradition and sense of belonging to a place and its society.

Generally speaking, heritage building markets exhibit several of the architectural and urban design features outlined in the book’s introduction. Through their function as gathering places, heritage building markets become landmarks—a point of distinction and reference within a neighborhood and urban fabric. The market building physically dominates a city block, often covering most of it. The building’s entrance façade provides a backdrop for various events and activities on the adjacent public plaza and in the surrounding streets. Markets of this type, particularly the two featured in this chapter, have a reciprocal rapport with stores and businesses across the adjacent streets. Likewise, nearby commerce develops a symbiotic relationship with this type of farmers market, as patrons of the market also make purchases at the proximate companies as part of their shopping routine throughout the week (see image 2.4). Another distinguishing attribute of heritage building markets is that they are open year-round for multiple days of the week, which increases the likelihood of them becoming a part of one’s shopping habit. The permanence of individual stalls allows vendors to embellish their displays with props such as tools of the trade, more elaborate signage than temporary set-ups, and special lighting. Despite these common scales of engagement, however, each individual heritage building market differs in other particular ways that make each one exceptional. They defy categorization beyond scales of interaction and interface.

Cross Section of Findlay Market plan. Drawing of the front of the market building.
Image 2.4 Cross section of Findlay Market.

Eastern Market: Washington, DC

On my first visit to Eastern Market in August 2005 I walked through the entrance—set into the building’s eighteen-inch-thick brick exterior wall—and was immediately struck by the astonishing array of colors and aromas that greeted me. The ambiance of the interior of the market building exuded tradition and ritual. I paused to think about the countless activities that had occurred within the market’s walls over generations and how its architecture had influenced those interactions. I tried to imagine how many people had benefited from the market over the years given its easily accessible location, within walking distance of the Capitol of the United States and associated office buildings as well as the surrounding neighborhood. Access was expanded in 1977 with the opening of a DC Metro light rail stop sharing its name: “Eastern Market.”

Since that first visit I have returned many times to pick up whatever vegetable is in season, fresh-cut flowers, or a wedge of handmade cheese. Each time I step across the threshold below its thick brick arched portals, I feel a sense of joy. Even on overcast dreary days, the building’s numerous large windows allow daylight to stream into its cavernous interior, which measures about 50 feet across and 200 feet long (see image 2.5). The interior space is unobstructed by columns or walls; lightweight iron trusses carry the span from load-bearing brick walls that define its perimeter. A baker’s dozen of stalls along its perimeter face a central aisle; vendors define their stall boundaries with display cases, shelving, tables, and signage.

Overhead plan and cross section of Eastern Market.
Image 2.5 Plan and cross section of Eastern Market.

The colorful display of Thomas Calomiris & Sons Fruit and Vegetables is situated in a prominent central location (see image 2.6). One Tuesday morning in 2006, Maria Calomiris greeted me with a smile and a soft “hello.” At the time, Maria was the wife of Chris Calomiris, who died in 2011, having been a seller at Eastern Market with his father Thomas all the way back to 1963.2 As Maria greeted me, she stood behind a three-tiered stack of neatly arranged fruits and vegetables—lemons, grapes, apples, onions, broccoli, cauliflower, carrots, rhubarb, and asparagus—with Greek honey, olive oil, and baklava tucked in here and there. I grabbed a bunch of bright green asparagus stalks along with a lemon. Mrs. Calomiris slid them into a paper bag along with a banana—the Calomirises have a longstanding tradition of gifting customers an extra piece of fruit, most often into the hands of children. Her late husband was known to slip an apple or pear into the jacket hoods of youngsters walking through the market on their way to school. Washington Post journalist Bart Barnes sums up the Calomirises’ generosity and stature, saying, “If there were such a position as ‘dean of vendors and merchants’ at Eastern Market on Capitol Hill, if there were such a job title as ‘face of the market’, if the market had a ‘keeper of memories’, they could all have been filled by Chris Calomiris.”3 Barnes’s statement exemplifies the sense of community that shoppers feel when purchasing from the Calomirises’ stall. Their stall design enables intimacy with customers amid the enormity of the interior. I found that this is not at all unusual; it is rather a necessary attribute of the most successful vendor stall setups in all types of markets experienced during my explorations.

Renowned Calomiris stall. A handful of patrons stand in front of the stall.
Image 2.6 Renowned Calomiris stall.

On another visit to Eastern Market in 2006, the voice of Ray Bowers caught my attention as I crossed the threshold of the entrance near C Street. “How are you today?” he asked. I replied, “Enjoyed that Stilton you sold me last week.” As he gestured towards a refrigerated eight-foot-long glass-covered case full of cheeses, Ray grinned and said, “What may I get for you this time?” At Ray’s stall, the display apparatus is elevated and all but disappears from view as shoppers gaze eye-level at cheeses. The distinct forms of cheese—loaves, wheels, and wedges—draw attention to the subtle hues of creamy white streaked with ash veins to bold golden orange with flecks of pepper. During this visit the classic five-year-old New York State Sharp Cheddar sat alongside regionally sourced Artisan Farmstead Cheeses from Meadow Creek Dairy in Galax, Virginia, and Cherry Glen Goat Cheese Company in Boyds, Maryland. I tasted “Appalachian,” a buttery, slightly sweet cheese that melted on my tongue—all the convincing I needed to decide on what to purchase that day. Since 1964, Ray’s stall and company, Bowers Fancy Dairy Products, have provided shoppers with a wide variety of cheeses to suit the pleasures of the most discerning cheese lovers (or tyrophiles, as they are known).

Across the wide aisle, glass-covered cases delineate the boundary of Canales Deli, a double-width stall offering specialty sausage, homemade barbeque, rotisserie chickens, deli meats, and salads. The immaculately clean, shining cases stand five feet high. Small, colorful signs reveal names of products—such as Jamon Iberico, Parma Prosciutto, and New Orleans Andouille—from places all over the world, including Spain, Italy, and Germany. One case displays colorful trays of different kinds of fresh coleslaw, mixed vegetable concoctions, and fruit salads. The Canales Deli stand may look similar to deli sections in some high-end supermarkets but Jose Canales can tell you the story of the quality of the ingredients and how each product is made; he has offered high-quality deli products at Eastern Market since 1983. Canales’s presence and interaction are a testament to the instinctive value that shoppers place on face-to-face communication as a means of maintaining direct ties to their food and its preparation. Shoppers patiently wait in a short line while he completes each transaction with a smile and a greeting of “Enjoy!”

At the northernmost of end of the building, very tall vases filled with brilliant bluish-purple irises stand atop a wrought-iron garden table (see image 2.7). These elegant flowers are the namesake of this stall, Blue Iris Flowers. It is composed of a dazzling rainbow of colors and array of scents (particularly the perfumes of lily of the valley and hyacinth), which differentiate this stall from the food vendors. Among the flowers stands a small handwritten sign that reads “flowers by Angie”—the name of the woman who stands among the tables covered with containers and vases of all sizes brimming with bouquets as well as individual stems of flowers. This arrangement is another example of space planning that invites intimacy between buyer and product, which allows a lasting relationship to develop between the producer and the purchaser.

People stand around admiring Blue Iris Flowers stall. Flower bouquets of different colors and sizes on are display.
Image 2.7 Blue Iris Flowers stall.

Just a few feet away, people gather along and in front of a counter to enjoy a savory meal at Market Lunch. This short-order grill is a DC eatery renowned for its blueberry buckwheat pancakes served at breakfast as well as its lunchtime burgers, fresh fish sandwiches, soft-shell crabs, and oysters. Customers standing in line observe the cooks in action beyond the counter, which is assuring in a way that modern food courts in shopping malls are not. On many days, I have observed various kinds of people enjoying their meal together: DC police officers in uniform, local businesspeople in professional attire, moms in jeans with kids in strollers, and tourists sitting side-by-side relishing a meal at Market Lunch. The closely situated small tables with chairs and counter with stools provide an eat-in kitchen cozy atmosphere that fosters a sense of familiarity among strangers—just another way in which public and farmers markets nurture a sense of community.

As I left the market building one day, I noticed a plaque on the wall that read, “Adolph Cluss, Architect.” The text commemorated the building’s bicentennial and honored Cluss—specifically, the beneficial contribution that his innovative architecture and urban design plan made to the city. At the time of its construction, Eastern Market was an influential example of Adolph Cluss’s trademark red brick building style that replaced the grandiose classical granite and marble public buildings of early nineteenth-century DC. Although Eastern Market was constructed of common red brick, its proportions and abundant windows give it elegance akin to a cathedral (see image 2.8). Innovative building features included high ceilings with natural ventilation and lighting and an open floor plan with convenient access for people and goods. The building had a hammered-glass iron-framed ventilating skylight extending along the entire ridge of its roof, which has been covered up since the 1970s, but was redesigned and rebuilt during the building’s renovation in 2009.4

Eastern Market entrance showing brick detailing and large windows. An American flag sits atop the building.
Image 2.8 Eastern Market entrance showing brick detailing and large windows.

Cluss (1825–1905) designed over seventy buildings in DC, including four buildings on the National Mall (though of these, only the Smithsonian Arts and Industries Building remains). He repeatedly chose to design buildings that appealed to the human scale and nurtured a sense of community. As city engineer, Cluss developed a plan that narrowed DC’s unusually wide streets by permitting property owners to plant and maintain gardens in the unpaved strip of street right-of-way in front of their houses. He proposed regulations allowing the construction of row houses with bay windows, porticos, and balconies extending beyond the front property lines, which eliminated the bland, flat facades of early nineteenth-century row houses.5 Cluss’s vision and successful implementation remains physically apparent in DC today, particularly along the streets on Capitol Hill encompassing Eastern Market.

One feature of Eastern Market, vital to its continued success but not designed by Cluss, is the minimal Victorian-era–inspired lightweight metal structure covering the sidewalk along the South Hall on 7th Street. On Saturdays from April through October the shelter protects vendors from rain and sunshine. Although only comprised of about a dozen vendors, this group significantly expands the amount and variety of fruit and vegetables, as well as generating a festival atmosphere that attracts other types of shoppers. Upon the arrival of these vendors, the adjoining block of 7th Street is closed during market hours as more vendors set up pop-up canopies on the other side of the street in front of two- and three-story brick buildings occupied by neighborhood-oriented businesses offering diverse goods and services on the ground floor, and professional offices and residences above. Similar to the street frontage of the neighborhood’s residences, display windows extend out onto the brick-paved sidewalk, and recessed entrances with bay windows overhead undulate the street frontage of the row house-like buildings.

At the corner of 7th and North Carolina, residents and tourists alike fill more than two dozen tables situated on the brick-paved public plaza. One day as I stood waiting for the traffic signal to change, I overheard two women discussing how they liked to prepare the vegetables they regularly bought at Eastern Market. One commented to the other about how fortunate they are to have the market so close to their home. The other responded by elaborating on how the market positively impacts the greater community through regular events and education about eating healthy food. This unsolicited validation of Eastern Market’s positive impact on the community intrigued me; I wanted to find out more about neighborhood leaders and residents that had kept this local (and national) treasure from demolition, a fate that many other public markets have confronted, and sadly, a fate that many heritage building markets have succumbed to.

For decades since the 1950s Capitol Hill residents had fought against gentrification and new development that would alter the continuity of the neighborhood’s historic architecture. One of the earliest efforts of residents to protect the integrity of its neighborhood was stopping the extension of the Southeast Freeway into the historic district. Since then many buildings have been saved and renovated through the leadership of the Capitol Hill Restoration Society.

Nonetheless, Eastern Market was in dilapidated condition and this had many Capitol Hill residents concerned for its survival. When I gleaned the community meeting records, I learned Eastern Market’s South Hall had a deficient heat system and no mechanical air conditioning. Consequently, during the summer months people rarely shopped at the market after two o’clock in the afternoon. Washington, DC, is well known for its hot and humid summer days and, on multiple occasions, shoppers had passed out due to extremely hot temperatures inside the building. For many years those managing the market and overseeing maintenance of the building struggled with other poor environmental conditions that barely met public health standards: brief but recurring rodent infestations and sewage back-ups in the basement, to name a few. At the time (1992), Eastern Market operated under the Eastern Market Act, part of the DC governing code, which stipulated that a private management company would service the building; the company “managed daily operations, which entailed establishing and collecting rents as well as maintenance such as snow removal, trash service and janitorial duties.”6 In 1999, the local government sought to make changes in Eastern Market’s management and maintenance. Legislative changes placed the Department of Real Estate Services (DRES) as the oversight agency and formed a new group, the Eastern Market Community Advisory Committee (EMCAC), to advise the DRES on Eastern Market’s operation, management, and capital improvements. The EMCAC would represent the entire Eastern Market community—stakeholders including community organizers, elected DC officials, vendors and professionals that ran proximate businesses on Capitol Hill. Despite these encouraging advancements towards preserving the building, it remained dilapidated and unchanged until 2003, when word got out that some DC government bureaucrats “thought to tear it down, or at least gut it and build a whole new interior similar to what happened to the Georgetown Market around 1985.”7

The possible degradation of Eastern Market triggered an outcry from residents and supporters alike who valued its physical structure and character as well as seeing its importance to the community. They knew what had happened in Georgetown, when its historically important market was gutted, leaving only the outer shell of the building. The interior was subdivided into upper and lower levels via a mezzanine. Dean & DeLuca, a privately owned gourmet grocery store, inhabits the space today. It serves only people willing to buy high-priced food. Eastern Market advocates did not want the same thing to happen to their market building.

The third remaining historical market in DC, O Street Market, has also struggled to escape demolition—a 2003 blizzard caused its roof to collapse, leaving only its façade still standing. Built in 1881, O Street Market is situated in the northwest Shaw neighborhood. After a decade of delays, construction began in 2012 for significant adaptive reuse of the site that includes a chain supermarket (Giant), and upscale apartments.8 Despite the building’s repurposing, only its historical architectural facade remained intact and it no longer serves as a public market. This outcome ignited concern for the survival of Eastern Market and strengthened community activists’ resolve for authentic preservation of the building.

Many people viewed the repurposing of O Street Market (like that of Georgetown) as economically successful, which placed pressure on government officials to treat Eastern Market in the same manner. However, Capitol Hill residents and the market vendors had a different vision: a restoration of the South Hall that maintained its function as a public market, its architectural wholeness inside and out, and kept the community uses of the North Hall. Local architect Baird Smith at Quinn Evans Architects was one of the forces behind the proposed work. Smith recalls, “Over a two-year period (2003–2004) EMCAC, the vendors, and neighborhood residents came together to come up with recommendations of how the market could be rehabilitated,” while still complying with today’s safety and accessibility standards for public spaces.9 This combined community effort kept Eastern Market from demolition; in fact, the government (which now owned the land and building) instead planned for an extensive three- to five-million dollar renovation.10 The community saved Eastern Market from the fate of Georgetown’s market, and even better, catalyzed the government to complete a historically sound renovation that would ensure the building survived intact for another century or more.

Fast forward to 2007; the chirps of spring songbirds filled the air one early April morning when interrupted by fire trucks blaring their sirens and screeching down 7th Street toward Eastern Market. I leaned out of my bedroom window and saw flames flickering and smoke billowing from the roof of Eastern Market two blocks away. After sunrise I walked down the street towards the market; the voices of neighbors talking in disbelief had replaced the noise of the sirens. Small groups of people stood at the corner of the building staring and pointing at the charred remains, their hands covering their mouths in disbelief. Others stopped on their walk to work and gawked open-mouthed. The three-alarm fire (out of five levels of response—a five-alarm fire being the worst) had severely damaged the building; the fire had nearly obliterated the roof, twisted the steel trusses, and blew out the glass windows, but the thick exterior brick walls stood intact (see image 2.9). Kimberly Konkel, a regular at the market, summed up the sense of loss, saying, “This is devastating. I’m surprised how emotional it feels to lose a building.”11

Interior of Eastern Market post fire 2007. Debris covers from floor to ceiling.
Image 2.9 Interior post fire 2007.

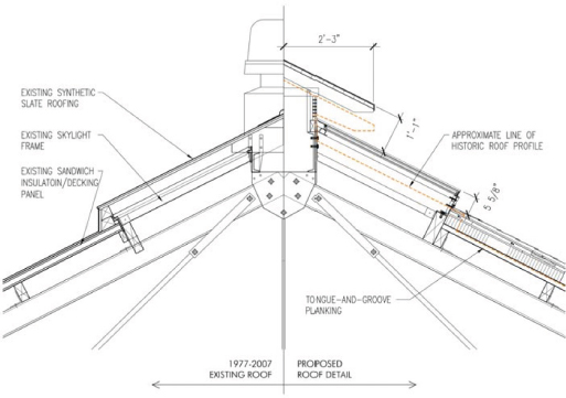
After the fire Mayor Fenty declared Eastern Market “a historical landmark that has been the lifeblood of the Capitol Hill neighborhood and a great source of pride for the entire city for more than a century.”12 He pledged to rebuild the market and immediately worked to find the necessary funds. Remarkably, the “struggling to get funded” renovation with estimated costs of three to five million dollars quickly grew to a twenty-million-dollar reconstruction and preservation project. The sense of community and determination of those involved would prove essential as city officials grappled with a much larger restoration and the additional complication of needing to immediately build a temporary structure to keep the thirteen indoor market vendors in business (and equally important, keep patrons satisfied). Fortunately, Quinn Evans Architects had drawings of the existing building, knowledge of Cluss’s architecture, and a professional reputation of “preserving and maintaining the historic and character-defining elements of buildings while providing for their contemporary use.”13 The reconstruction necessitated replacing the iron trusses, such that the roof was completely rebuilt, which included a new ventilating skylight similar to the original design (see image 2.10 and image 2.11). Restoration included masonry repair and window replacements, as well as installation of long overdue improvements including mechanical air conditioning, and automatic fire suppression systems.

Sectional drawing of roof 1977-2007 (left) and new roof with ventilating skylight.
Image 2.10 Sectional drawing of roof 1977-2007 (left) and new roof with ventilating skylight (right).
Looking up at the new ventilating skylight. A lot of natural light.
Image 2.11 Looking up at the new ventilating skylight.

Eastern Market reopened in June 2009, just over two years after the devastation. Having moved away soon after the fire, I returned for a visit in November 2011. On that visit and on others since, the sidewalk on the north side of the market building bustles with shoppers carrying bags overflowing with lettuces, herbs, and other produce. As I walked through the central brick arch portal once again, I felt a familiar sense of joy that this time turned into unfettered delight as I scrutinized the renovation. Quinn Evans Architects had rebuilt the 200-foot-long skylight true to its authentic design—the skylight flooded the market stalls with sunlight. They deftly minimally modified the rest of the building to meet modern health and safety codes while still maintaining the building’s architectural integrity. My first visit to the “new” Eastern Market felt like meeting up with a dear old friend. I am not alone in my admiration of its high-quality design and food. Since its completion in 2009 Eastern Market has garnered numerous awards.14

Findlay Market: Cincinnati, Ohio

Of the nine public markets that operated in Cincinnati from the mid-nineteenth century to the mid-twentieth century, only Findlay Market remains. The other eight still standing in the early half of the twentieth century fell prey to interstate highway construction in the 1960s that cut through the city to accommodate the increasing use of automobiles, and urban renewal programs that demolished underutilized buildings as many people moved from distressed cities to the newly constructed idyllic suburbs. Like Eastern Market, Findlay Market’s survival is due in large part to the community’s activism and desire to protect and preserve its historical landmarks. Built originally as an open pavilion under the direction of city civil engineer Alfred West Gilbert (1816–1900), the cornerstone of the market was laid in October 1852, but disputes with contractors regarding shoddy workmanship kept the market from opening until 185515 (see image 2.12). While impressive in length at nearly 400 feet, the industrial scale and plainness of the original building make it all the more amazing that it survived destruction.

Horse and buggies line the street in this view of Findlay Market from Race Street (circa 1930).
Image 2.12 View of Findlay Market from Race Street circa 1930.

I first visited Findlay Market in late May 2004 with my friend Lia Braaten, who lived in Cincinnati’s Over-the-Rhine neighborhood where the market is located. From three blocks away, we began encountering crowds that noticeably slowed our pace as we walked along Race Street. Turning onto Elder Street, the extremely long structure with a bell tower in the middle came into view. Baskets brimming over with flowers hung from the roof’s eaves and tables covered with pots filled with plants in bloom dotted the entrance at the end of the building. Lia exclaimed, “I told you it’s fantastic!” A mayhem of people and a vast array of goods soon engulfed us—the market vibrated with the hum of people’s voices and occasional exclamations of “Oh, look at this!” or “Ooh, something smells good.” Under the gabled metal roof, colorful, fragrant flowers lined the entrance to the interior of the market hall. Just beyond the double glass doors, the enclosed voluminous space bustled as people maneuvered up and down the central aisle, flanked by refrigerated cases full of meat, poultry, cheese, and other attention-grabbing, freshly made goods. Despite these sensory distractions, my eyes were drawn upwards to the lightweight iron trusses painted Tuscan red (see image 2.13). These modified Fink trusses gave the interior of Findlay Market its distinctive character at the time of its construction in 1852 and still distinguish the market today. While wrought iron framing was prevalent in railroad bridges of the nineteenth century, Findlay Market was the first instance of a public market using this technology in the United States.

Inside Findlay market. Distinctive Tuscan red Fink trusses line the ceiling with patrons milling around below.
Image 2.13 Distinctive Tuscan red Fink trusses in historic market building.

As the lifestyle of Americans underwent drastic changes in the 1960s, so too did the shape of their cities. Government officials destroyed the historic identity of many American cities through the removal of significant public buildings, particularly civic ones, including public markets. Ohio’s government demolished the Sixth Street Market, built in 1895, to make way for the Sixth Street approach to I-75 Mill Creek Freeway. Findlay Market had prevailed, but was in serious jeopardy. Thankfully, many Americans had grown increasingly concerned about losing beloved historic buildings, and in 1966 the U.S. Congress adopted the National Preservation Act, federal legislation that protected landmark buildings and neighborhoods.

Preservationists and urban activists in Cincinnati recognized Findlay’s notable but fragile existence, and rallied to obtain its entry into the National Register of Historic Places in the early 1970s. The market’s geographic location among architecturally significant buildings proved essential in attaining historic designation status; its surrounding neighborhood, Over-the-Rhine, consisted of 950 structures largely built by German immigrants between 1860 and 1900. According to the Historic District Designation Report, “Over-the-Rhine’s collection of commercial, residential, religious and civic architecture is one of America’s largest and most cohesive surviving examples of an urban, nineteenth century community.”16 Findlay Market, supported by its densely populated neighborhood, continued to thrive into the twentieth century. The abundance of notable late nineteenth-century Italianate architecture in the area (and in fact, the United States) led city leaders to rally once again to gain designation as a National Historic District in 1983, and the Over-the-Rhine North Local Historic District was founded in 2001. The conservation guidelines describe this district as “a dense urban area that displays a visual continuity conveying a sense of time and place.”17 This physical continuity results from the repetitive use of brick as the dominant exterior building material and the vertical proportions of the building’s volume, as well as its doors and windows. The openings are accentuated by flat or arched pediments overhead, and projecting eave brackets supporting an impressive overhang emphasize the roofline. The modulation of the individual buildings results in high frequency of entrances to shops on the ground floor with extra-tall windows. Intermittently, buildings constructed in the more ornate Queen Anne Revival or muted Greek Revival styles punctuate the consistency of the Italianate structures.

The distinctive attributes of the neighborhood supporting Findlay Market reminded me of what Lia Braaten told me during my first visit. She remarked, “Findlay’s history, its cohesiveness, and the sense of community that you feel when you shop here makes it special.” (see image 2.14) Her sentiment is echoed in the market’s website:

No matter how your Findlay Market story starts, we all share the pleasure of carrying on a tradition that is a century and a half young. Each week, we gather in this living landmark to shop, socialize, and reconnect with the people who grow and purvey our food. Together, we have embraced a shopping experience—with the emphasis on experience—that is simply irreplaceable. The quality and value of the products available is unparalleled; the diversity of our customers and the democratic approach to service is unique in the region. Findlay routinely attracts the most socially, economically, racially, and ethnically diverse crowds found anywhere in Cincinnati. Shoppers surveyed since 2007 have registered over 190 zip codes. An estimated 1,086,580 shopping visits were made to Findlay Market in 2013.18

Aerial view of Findlay Market brightly lit at night.
Image 2.14 Findlay Market thrives in Over-the-Rhine neighborhood.

Five years later the website states that “an estimated 1.2 million shopping visits are made yearly—making this historical landmark the 5th most visited place in Cincinnati (behind the Cincinnati Zoo, Great American Ball Park, the Museum Center, and a Casino)!”

Signs of the racial and ethic heterogeneity of its patrons can be seen in the variety of food-related events and activities that align with regional identity. Cincinnati is known for its unique recipe for chili that includes chocolate and is served over spaghetti (though, as I found, recipes vary). For over a decade, Findlay Market has held its annual chili cook-off competition in late January inviting vendors and residents alike to submit theirs for tasting. Other events align with local customs or offer cultural enrichment. The annual opening day parade (of Cincinnati’s Reds baseball season) ends at the market and includes marchers representing the city’s mix of residents from diverse backgrounds and origins. During the month of April poetry readings happen every Sunday to celebrate National Poetry Month.

On a return visit to Findlay in 2005, I entered through the bell tower that joins the north and south wings, each 150 feet long. The market opens each day with the ringing of the bell (relocated from Cincinnati’s Pearl Market in 1934). I searched out the J. E. Gibbs Cheese stall among the string of uniformly sized stalls, which measure ten feet by fifteen feet. Gibbs’s stall stands out through its display of tools: a butter churn, a butter tub, a manual cheese slicer, and a balance scale. Sturdy wooden boxes used for transport enhance the visual appeal of the array of cheeses on show in the four-foot-tall and three-foot-deep glass-covered case. These instruments of the trade date back to when Jeff’s great-great-grandfather, James, opened at Findlay Market in 1922. The various forms of cheese—balls of mozzarella, logs of chevre, and rounds of Brie—also act as visual markers in giving identity to this purveyor.

Next to Gibbs’s stall stood another long-term merchant, Charles Bare Meats, which opened in 1909 and remained family-owned until 1995, when Neil Luken purchased it from third-generation owners Tony and Joe Bare. Neil Luken Meats continues to offer a full line of high-quality meats at a fair price. This stall gains its identity initially through five- by six-inch signs with “SPARE RIBS” written in bold red letters at the top, and “$2.29 lb.” written below in black. While the colorful sign first draws the shopper’s attention, the color of the meat is the real draw—vibrant hues of bright pink and red indicate freshness. The curved glass case full of meats entices so effectively that on my own visits, I’ve even contemplated the “trotters”—pig’s feet—if only for a moment.

Luken had worked at his brother’s Findlay fish shop starting at twelve years old. He later went to college and became an accountant, but returned to the market three years after graduating because making fresh wholesome food and selling at Findlay Market “was just in his blood.” Neil chooses to make his living at the market because he says the atmosphere can’t be found anywhere else in Cincinnati.

When Luken purchased Charles Bare Meats in 1995, Findlay Market needed major repairs. The last significant renovation had happened in 1973–74 as part of the federal Model Cities program, but decades of subsequent neglect had left these century-old structures in a sorry state. At last the government and the people came together in the 1990s to save Findlay Market. In 1995 Cincinnati’s Department of Economic Development and Department of Public Works commissioned a master plan for revitalizing the market and its surrounding buildings.19 Adopted in December of that same year, the plan guided business development through the Corporation for Findlay Market, a private nonprofit management organization founded in 2000 to lead the effort for renewal of the market building and district. Between 1995 and 2004 the City of Cincinnati invested more than $18 million in the market’s revitalization. For the renovated Findlay Market to be successful, however, it was clear that the buildings in the surrounding neighborhood needed major rehabilitation to address blight and building vacancies. In 2006 Cincinnati City Council named the Corporation for Findlay Market its preferred developer for thirty-nine city-owned properties near the market.

Today, the neighborhood surrounding Findlay Market embodies renewal and liveliness; brightly colored windowsill boxes and hanging baskets with flowers cascade above the sidewalks and visually inviting store window displays attract pedestrians who are there to shop (see image 2.15). Numerous restaurants at the street level offer seasonal outdoor dining that enhances the vitality of the area. Streets surrounding the market—Race, Elder, Elm, and Essen—house food-related shops with large storefront windows displaying delicious-looking local, specialty, or international fares. Churchill’s Fine Teas entices passersby with displays of teacups, tins of tea, and tea ware—some vintage and rare. The shop offers teas from around the globe, hence the shop owner’s program, “Learn About Tea, Learn About the World.” Apartments in the upper levels of the three- and four-story brick buildings provide residents with easy access to an array of fresh, nutritious food at all times of the day. In fact, Findlay’s presence goes beyond the building itself, and extends to at least ten surrounding blocks within a ten-minute walk (a quarter-mile walking distance); this area is now named Findlay Market District (see image 2.16).

Large crowds move between the adjacent buildings from the market center. The sky is setting in the background.
Image 2.15 Adjacent buildings house food-related businesses.
Diagram showing 500-foot radius of Market District. A circle highlights the actual market.
Image 2.16 Diagram showing 500-foot radius of Market District (Findlay is oblong shape at center).

The leadership of Findlay Market has reached out to low-income, underserved populations in a number of ways. In 2016 Findlay Kitchen opened one block south of the market building on Elm Street. This new facility, located in one of the refurbished historic buildings, is a self-described “nonprofit food business incubator” that supports low-income and minority food entrepreneurs hoping to “start, grow, and scale their business.”20 Aspiring food entrepreneurs have access to eleven affordable professional kitchens with commercial-grade kitchen equipment. Findlay Market leadership has also established community gardens and accepts SNAP benefits. The impact of the urban farm plots in neighboring communities is discussed in more detail in Chapter 5, as it has beneficially altered the way of life and living for inner-city youth and underserved populations, which is one of the particular focuses of that chapter. The market’s SNAP Plus program began in 2007 and, for every visit, matches up to $10 in SNAP money, redeemed using an Ohio Direction Card—this state’s name for its Electronic Benefit Transfer (EBT) card. In 2014 a program, Produce Perks, began to incentivize the purchase of fruits and vegetables. Communications Director Kelly Lanser states that the magnitude of benefits is around $20,000 per year for the vendors selling under the pavilion and pop-up tents; building merchants have their own individual accounts capable of redeeming SNAP monies via EBT cards. Locally headquartered Proctor and Gamble provides generous support (but not all funding) for SNAP Plus.

Years after my first visits to Findlay Market, I was curious about the details of the market building’s and neighborhood’s renovations, so I contacted Glaserworks, the architecture firm responsible for the restoration and expansion of Findlay Market, and spoke with architect Andrew Schneider. While the rehabilitation respects the original building interior and structure of city civil engineer Alfred West Gilbert, Glaserworks made significant changes to the exterior of the building (see image 2.17). They opened up once-solid walls between columns and added new shallow stalls around most of the perimeter of the building, facing onto the streets with glass walls that open, rolling up like garage doors. The scale of building components—doors and window frames, columns and gutters, awnings and signage—augments the cornucopia of displays visible from outside the market building (see image 2.18). The bright hues of these architectural elements amplify the colors of the food and goods (see image 2.19). These changes to the perimeter of the market building greatly enhance pedestrian density and visual continuity for a distance of about 200 feet. Although the building does not offer the grandeur evident in DC’s Eastern Market, the openness of the building’s perimeter provides a sense of connection between market stalls visible from adjacent streets and the outside shops lining those streets (see image 2.20).

Floor plan and elevation drawing of renovated market building. Two views shown, one aerial and one from the side.
Image 2.17 Floor plan and elevation drawing of renovated market building.
People lining up to buy produce from the vendor displays.
Image 2.18 top. Vendor displays in perimeter stalls.
Outside view of the market and the additional buildings around it.
Image 2.19 middle. View of new stalls encompassing perimeter of historic building.
Vendor displays extend into the street. Shows an easel with art on it.
Image 2.20 bottom. Vendor displays extend into the street.

Similar to Eastern Market, Findlay’s renovation has garnered multiple awards for the architectural firm Glaserworks for its high-quality preservation while maintaining its distinctive original design character.21

Eastern Market and Findlay Market are two shining examples of how heritage building markets provide distinctiveness to their surrounding neighborhoods more than a century after their founding. Both markets remain vital today, as they continue to serve as gathering places for diverse groups of people and thereby to foster a sense of community and collective existence. I contend that how these formative examples maintain a strong relationship between the physical building and setting within the associated social framework—between place-making and collective meaning-making—arises from the symbiotic relationship of situation, ritual, and fellowship. While each neighborhood differs in its particular contemporary circumstances—DC’s federal government’s dominance versus Cincinnati’s racial and ethnic tensions—the building fabric was constructed in the same timeframe of the Victorian era. Synergy between the architecture of the building and the sense of place played a critical part in forging bonds of solidarity among residents over the duration of years and through the routine of their daily lives.

Annotate

Next Chapter
Chapter 3: Open-Air Pavilion Markets
PreviousNext
Copyright © 2020
Powered by Manifold Scholarship. Learn more at
Opens in new tab or windowmanifoldapp.org