Skip to main content

Autonomy-Supportive Environments for People Living with Dementia: Autonomy-Supportive Environments for People Living with Dementia: A Case Study of Two Dementia Residences

Autonomy-Supportive Environments for People Living with Dementia
Autonomy-Supportive Environments for People Living with Dementia: A Case Study of Two Dementia Residences
  • Show the following:

    Annotations
    Resources
  • Adjust appearance:

    Font
    Font style
    Color Scheme
    Light
    Dark
    Annotation contrast
    Low
    High
    Margins
  • Search within:
    • Notifications
    • Privacy
  • Project HomeProceedings of the Environmental Design Research Association (EDRA) 50th Conference
  • Projects
  • Learn more about Manifold

Notes

table of contents
  1. Autonomy-Supportive Environments for People Living with Dementia: A Case Study of Two Dementia Residences
  2. Abstract
  3. Introduction
  4. Methods
    1. Study design
    2. Analysis
    3. Sites
  5. Findings
    1. Indoor activities
    2. Outdoor activities
    3. Dining
    4. Use of the toilet
    5. Living units
    6. Wayfinding
  6. Discussion
  7. Conclusion
    1. Implications for Practice
  8. Acknowledgments
  9. References

Autonomy-Supportive Environments for People Living with Dementia: A Case Study of Two Dementia Residences

Jiajing Li, School of Architecture, Tsinghua University

John Zeisel, I’m Still Here Foundation, Salford University, La Sorbonne

Abstract

Purpose: To understand and define environmental features that, together with care practices, contribute to the autonomy of residents in assisted-living communities that support the cognitive well-being of people living with dementia.

Design and Methods: This study’s diagnostic research design involved systematically observing the daily activities of residents and care partners in two residential communities, employing a structured checklist to assess the level of residents’ autonomy enabled by the physical environment. Autonomous behavior includes four domains: freedom, independence, control, and choice. Observations included residents’ freedom of movement, both indoors and outdoors, ability to decide when to get up and have breakfast, choices of meal offerings, choice to join an activity or not and which activity to join. Autonomy also includes independence of wayfinding, dining, and using the toilet, control over the level of activity involvement and stimulation a resident wants to have, and control over furnishing and decoration the person’s own dwelling space.

Results: The environment and care practices at both residences offered strong support that maximized residents’ exercise of freedom, independence, control, and choice. The organization and layout of the environment, number and types of common areas, and available appliances all played an important role in realizing different activity programs, freedom of choice, outdoor accessibility, and other contributions to autonomy. Safety concerns limited the complete freedom and independence of residents.

Key words: Physical environment, dementia, autonomy, freedom, independence, control, choice, nonpharmacological, ecopsychosocial

Introduction

Autonomy is recognized as a basic human need (Doyal & Gough, 1991). In residential care, autonomy is considered a critical component of and contributor to psychological wellbeing and a sense of being “at home” for senior residents (Boyle, 2005; van Hoof et al., 2016; van Hoof, van Dijck-Heinen, Janssen, & Wouters, 2014). In long-term care communities for older adults, autonomy is often compromised, limited by a combination of environment and policies such as care efficiency, risk management, institutional regulations, and individual capacity (Bland, 1999; Cohen‐Mansfield et al., 1995; Collopy, 1988; Regnier, 2003). For people living with dementia, autonomy is often overlooked; caregivers and family members sometimes pay little attention to patients’ desires, believing that they do not know what they want and cannot make decisions for themselves (van der Roest et al., 2007).

Autonomy and related concepts are critical “therapeutic goals” of the physical design of health care environments, seen in environment assessment tools and design guidelines for dementia care facilities (Cohen & Weisman, 1991; Lawton et al., 2000; Torrington, Barnes, McKee, Morgan, & Tregenza, 2004; Zeisel, 2009, 2013; Zeisel, Hyde, & Levkoff, 1994). Namazi and Johnson (1992) studied design features that support autonomy. The present study began with a literature review carried out by the first author (Li, forthcoming) that identified freedom, independence, control, and choice as the four domains of autonomy this study would focus on.

1) Freedom: Acting within a certain realm without limitation or regulation.

2) Independence: Participating in daily activities, to the extent possible with the scope of individual abilities.

3) Control: Exerting influence on environment and events.

4) Choice: Selecting among meaningful options related to environments and activities.

There is little research focusing on how physical environments support autonomy in people living with dementia, their sense of freedom and independence, or their levels of control and daily choices. The present study aims to answer the following questions:

1)What environmental factors influence the autonomy of people living with dementia and in what way?

2)How might design features of the physical environment work together with care practices to enhance the autonomy of people living with dementia?

Methods

Study design

The study employing a diagnostic research approach (Zeisel, 2006:93) was carried out at two assisted living residences designed for people living with dementia in the same state, an hour away from each other. Both residences are run by the same senior living company, employing the same care approaches and philosophy. Although both residences were renovated from old buildings in the 1990s, the quality of physical environment is different. Major differences include the richness of activity spaces and the accessibility of a garden, which might have different impacts on the autonomy of residents. Observations were made during the same week. Five research methods were employed.

1)Observation. The researcher spent one full day in each residence, from 9 am to 5 pm, observing behavior and space use and interviewing staff members and residents.

2)Environment checklist: Based on a comprehensive literature review, physical environment features and care policies that potentially support autonomy were coded employing a 101-item checklist, with a 3-point rating scale per item and detailed written descriptions of each rating.

3) Open-ended interviews. The first author interviewed care partners, the administrator, and residents, employing an open-ended interview guide. Topics included activities, food service, and outdoor space usage, as well as residents’ room preferences.

4)Photographs. The first author recorded the physical environments in photographs.

5)Floor plans. The floor plans of each building and garden were analyzed.

Analysis

Findings were analyzed to identify the impacts of indoor activities, outdoor events, dining, toilet use, bedroom arrangements, and wayfinding on the four domains of autonomy. The data regarding the influence of physical and social environments (i.e., care practice and policy) on autonomous behavior in each of the two residences were compared to one another to identify patterns.

Sites

“S” Residence. The “S” residence is located on a single floor in a renovated hospital wing, with 20 single and three semi-private rooms. Activity spaces include a dining area with a country kitchen, a living room located close to the garden, a sunroom at the end of the corridor, and a healing garden. There is a wide porch overlooking the healing garden. During the data collection, there were 21 residents, two administrators, one program director, and three paid care partners per shift.

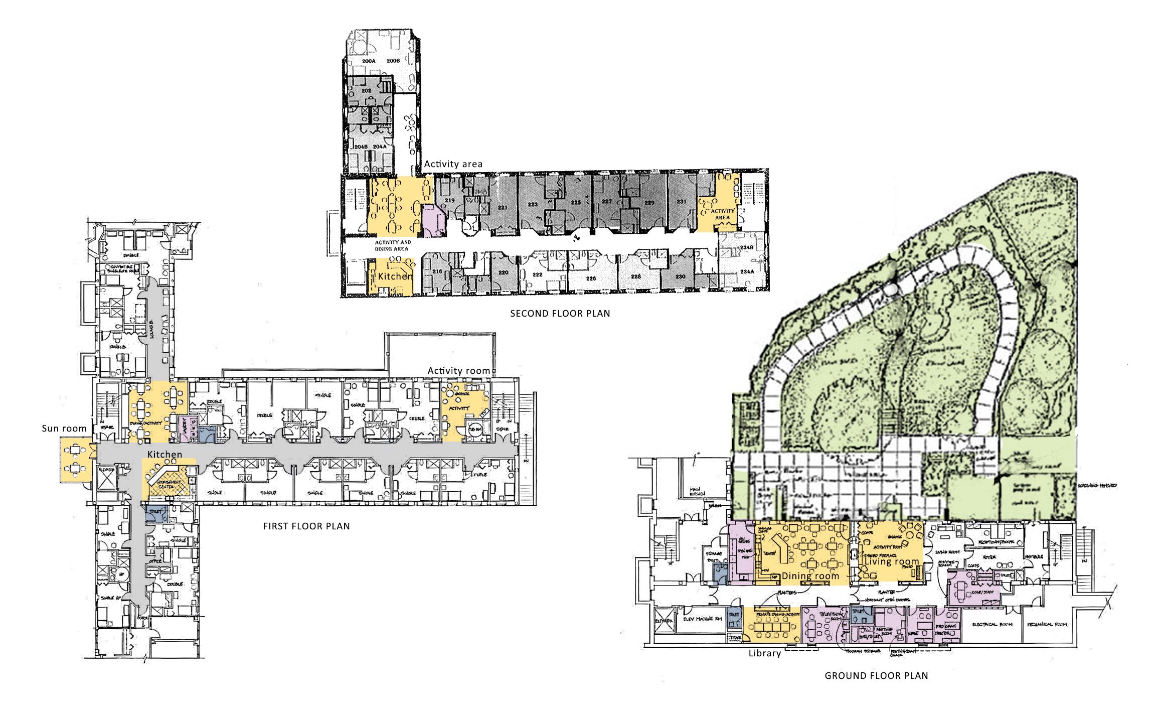
In the “S” residence, different programs focusing on various skill levels are provided for residents in the early, middle, and later-stages of dementia. “Discovery” is targeted towards those in the early stage. “Vitality” is for residents with moderate to mid-stage dementia. “Serenity” is for those in the later stage. These programs are conducted at the same time but in different common rooms, a process called “parallel programming.” The “flow” of the day in the “S” residence was outlined on a blackboard located at the entry of the dining room (see Fig. 1 below, where SR stands for sunroom, LR for living room, and DR for dining room).

Figure 1. “S” residence floor plan and program

“K” residence. The “K” residence is a three-story wing of a larger building, with 24 single rooms and 10 semi-private rooms. At the time of this research, there were 44 residents, two administrators, two program directors, and approximately nine care partners per shift, plus one registered nurse. There were usually two or three care partners on each floor.

The ground floor or “garden” floor comprises of several offices, a living room, meeting room, library, large dining room with a country kitchen, and “healing” (or therapeutic) garden that can be entered from the living room. One story above the garden floor is the first floor, including an open living room with a small alcove and country kitchen located across an open hallway. The country kitchen has a counter where residents can sit while eating breakfast. Residents on the first floor were of a higher care level than those on the second, one floor up. At the other

Figure 2. “K” residence floorplans and program arrangements.

end of the hallway from the open living room on the first floor is a separate activity room for residents in the later stages of dementia, who participated in the “Serenity” program. Close to the open living room is a sunroom overlooking the garden attached to the adjacent assisted living residence, for people without a diagnosis of dementia. The second floor has a similar spatial structure as the first floor, except that most of the residents required less care and joined programs on both the ground and second floors, appropriate for their abilities.

The flow of a day schedule at the “K” residence was listed on each floor, on a blackboard (see Fig. 2, below). In Fig. 2, Lib stands for library, LR for living room, DR for ground floor dining room, and 1st FL and 2nd FL

represent the first and second floor living and activity rooms, respectively.

Figure 3. Call button for elevator assistance in the “K” residence.

Figure 4. Residents in the “K” residence participate in the Culinary Club.

Findings

Indoor activities

Freedom. Both residences encouraged free movement in the indoor environment, offering full access to all the activity spaces, dining room, and country kitchen. In the “K” residence, capable residents were given a key so they could use the elevator wherever they wanted. There was also a blue button on each elevator door for those who did not have a key, but could read the sign to call a care partner for assistance (see Fig. 3); this guaranteed residents’ safety. Residents also had the freedom to engage in alternate activities if they desired; they did not have to participate in the offered programs. In the “S” residence, residents could choose to sit with the staff to have their nails polished, or just sit and chat with friends while group activities were going on. A variety of spaces and seats along the corridor afforded residents a sense of freedom to initiate meaningful interactions.

Independence. Both the “K” and “S” residences encouraged residents to use and maintain their ability to carry out meaningful activities and help with household tasks. In the “S” residence, a resident could sit at the kitchen counter and help cut fruit to make salads for lunch. Another resident was observed pushing a cart with food to the sunroom. In the “K” residence, residents participated in the Culinary Club, baking cookies for refreshment (see Fig. 4) and helping to arrange the tableware. However, all household activities were guided by care partners. In both residences, theme corners were purposefully arranged for residents to self-initiate activities, such as reading today’s article, learning about baseball, or helping to complete a puzzle (see Fig. 5). However, only one resident was observed reading the article provided in the alcove. The environments and guidance of care partners worked together to help residents exercise their independence.

Figure 5. Theme corners in the “K” residence promote meaningful self-initiated activities.

Figure 6. Semi-public spaces around the living room of the “K” residence.

Both residences provide wide corridors with seats and handrails -- unobtrusive 4-inch wide rails that residents can lean on for support as they walked. Appearing as part of the wainscoting, these encouraged residents to independently walk along the corridor and rest whenever needed.

Control. In the “K” residence, there were more semi-public spaces such as alcoves and seats around core activity spaces, from which residents could watch the activities. This offered residents a sense of control, especially if they were not sure if they wanted to join an ongoing program. Residents were observed walking around and sitting in alcoves, sometimes watching the activities but not necessarily actively participating in conversations (see Fig. 6).

In the “S” residence, the space hierarchy was not as complex as in the “K” residence, which seemed at times to compromise residents’ ability to control noise and their level of privacy. For example, both the sun and living rooms were somewhat small for group programs. In the morning, the Exercise Committee had to share the living room with the group engaged in the group board game. The sounds of the two programs competed with one another and residents could not clearly hear the staff, which appeared to cause confusion (see Fig. 7). Similarly, one afternoon, a resident and her visitor were chatting in the corner of the dining room. The conversation was interrupted by a care partner’s effort to move refreshment tables. Lack of separate spaces limited control over privacy and sound, especially for self-initiated activities. A hierarchy of public spaces offers a buffer zone that can assist with controlling sightlines and levels of participation, creating opportunities for new residents to familiarize themselves with an activity and accommodate those who simply want to watch a program.

Figure 7. Two group activities in the living room compromised control of noise and privacy in the “S” residence.

Figure 8. In “K” residence, one core staff member and one side person lead the Discovery Club.

Choice. Both residences offered a choice of activities that occurred at the same time, a process called parallel programing. There were more residents and spaces for activities, and a greater variety of programs in the “K” residence. In the “S” residence, while there was parallel programing, only one activity was offered for each level. Observations indicated that if a resident did not want to participate or wanted to leave a program, he or she would be left to walk along the corridor or sit by him or herself. For example, at 2 pm, when the Documentary Discovery Program was finished in the living room, the care partner who ran the program announced that she was going to start a group board game familiar to the residents. Two residents heard this and decided to go to the dining room instead to chat. They appeared to agree that they were not interested in the group board game. According to the description provided by the Program Director, the individual responsible for organizing activities, every evening after dinner two movies were shown, one in the sunroom and the other in the living room, which offered the residents a choice.

In the “K” residence, observations indicated that there were always multiple choices offered to residents of different levels. They were invited to participate in every program, and were also free to leave a program and join another being held elsewhere, or choose another activity under the guidance of the care partners. For example, in the Discovery Club for early-stage residents, two staff members led a program; one sat in the center and the other sat along the side. If a resident stood up and left the group, the “side person” would ask them where they wanted to go; after confirming that they didn’t want to stay with the group, the side person would accompany them downstairs, perhaps joining them for a stroll in the garden (see Fig. 8). The variety of spaces and large number of staff worked together to offer meaningful choices to residents.

Outdoor activities

Freedom. The two residences had different policies regarding free outdoor access. The door to the garden of “S” residence was generally kept locked. Residents had to ask their care partners to open doors for them. During the observation day, which was cloudy, no one asked to have a door opened. When the first author asked to have the door unlocked to see the garden, three residents followed her and stood on the porch, talking about the garden. The Director explained that the door was kept locked because of concerns for residents’ safety; there is a railing along the porch and a long ramp providing access to the garden. The Director was concerned that someone might climb over the railing and jump down (see Fig. 9). This may or may not occur, but their concern led them to keep the door locked. Another possible reason is that the level difference and layout make it impossible to provide visual surveillance of the garden from the indoors.

In the “K” residence, the door to the garden was generally kept unlocked until all the residents returned to their floors. The garden could easily be seen from the living and dining rooms. Staff offices are located close to the living room. The Director reported that she, the nurse, and other employees were always able to keep an eye on the garden. During the observation, several residents were seen letting themselves outside to enjoy nature. The safety issue (i.e., the level difference and surveillance view) was a very important factor in making decisions about whether to allow residents the freedom to go outside without supervision.

Figure 9. Ramp in the “S” residence’s garden.

Figure 10. Shrubs serve as a buffer to provide privacy in the “K” residence.

Control. Both the “S” and “K” healing gardens have simple layouts and looped pathways (Zeisel & Tyson, 1999). Residents of both residences could easily grasp the layout and thus have a sense of control. This is called “natural mapping” (Zeisel, 2009). As an example, one resident in the “K” residence was observed strolling along a main path. She asked her care partner “how to get out of here.” The care partner showed her that she could just follow the pathway to the gate to leave the garden. The resident quickly understood and looked much more relaxed.

Both gardens provide private seating areas at the locations furthest from the garden entrance, surrounded by plants, trees, and the garden fence. Residents sat where they desired, controlling their exposure to others, enjoying intimate conversations with friends and family members, or just spending time alone (see Figs. 10).

Choice. Both residences offer a variety of outdoor seating spaces to accommodate different needs. In the “S” residence, there are chairs on a wide porch under a roof and at the base of a ramp, as well as seats around a table with an umbrella, chairs under the shade of a tree, and other benches in the sunlight (see Fig. 11). In the “K” residence, there is a small vestibule between the living room and garden, and in the garden, there are seats around a table with an umbrella, a pergola, chair swing, and several other chairs either in the shade or sunlight (see Fig. 12). The day the first author observed the “K” residence, it was sunny. Residents typically chose or were guided to seats under an umbrella to block the sun, which allowed them to look out at the garden and chat with friends. The variety of seating offered residents meaningful choices in the garden.

Figure 11. Garden with various seats in the “S” residence.

Figure 12. Gardens offering various shaded spaces in the “K” residence.

Both residences provided many choices for garden activities, such as filling bird feeders, gardening, having a barbecue, and playing bocce ball. The bocce ball area was a converted, underused shortcut, a clear demonstration of how the staff was continually working to increase choices for residents. Raised flower beds, lawns, seats, and tables are all essential for these activities.

Dining

Freedom. Freedom to decide when to eat was partially promoted in both residences. Bedtime and when to get up were also flexible, according to each resident’s wishes and habits, as was when to have breakfast. From 7am to 11am, care partners cooked breakfast for residents in the country kitchen. A toaster; induction cooktop; refrigerator full of milk, bread, and eggs; and a microwave were essential appliances supporting residents’ freedom and choice during breakfast time (see Figs. 13 & 14). However, lunch and dinner times were fixed in both residences, as part of a daily routine.

Residents were partially free to use the small kitchen. The sink and refrigerator were always accessible. For safety reasons, the toaster, microwave, and coffee maker were available to residents but all the plugs were pulled out after use. The oven was only used for Culinary Club activities and was locked the rest of the time.

Figure 13. A family-style kitchen in the “S” residence facilitated freedom regarding when to have breakfast.

Figure 14. The refrigerator in the kitchen was full of food in the “S” residence.

Figure 15. Self-service snacks and drinks in the “K” residence supported independent access to food.

Independence. In the “K” residence, the second-floor kitchen provided self-service coffee and muffins on the kitchen counter(see Fig. 15). On the ground floor, self-service cold drinks were provided along the corridor, but snacks were not left out. One of the care partners explained this was because the staff were worried about some residents’ tendency to overeat. In the “S” residence, the snacks (cookies) were only available when residents asked for them, reducing their independence.

Choice. The choice of food is an important part of the daily flow. At lunch and dinner, residents were provided with two options. In the morning, both “K” and “S” residence Program Directors asked every resident about his or her preference for lunch, and a display with the daily meal’s information was placed near the dining room. Once all residents had taken a seat, care partners prepared two dishes and showed them both to residents, asking for their selection. In the morning gathering, the information on the display served as a rehearsal for making their choices, and the real dishes were offered as additional help (see Fig. 16). The food is cooked in a central kitchen and served on plates in the dining area, enabling residents to choose what they like based on rich sensory information (i.e., smell, sight) (see Fig. 17).

In both residences, various kinds of seats were provided. In the “S” residence, both the dining and sunrooms were used as dining areas. One was used by more capable residents who were served “family style,” sitting around a long dining table composed of three square tables. The dining room was for residents in the more advanced stages of dementia, who might need more assistance and surveillance. Care partners sat with residents to help orient residents to eat, or to help them eat if they could not feed themselves. One resident who regularly talked to herself was allowed to eat at the kitchen counter in the “S” residence, protecting her dignity while preventing her from disturbing others (see Fig. 18).

Figure 16. Food options are shown to residents so they can make a choice (photo taken in the “K” residence).

Figure 17. Food is put on display in the dining room, making choice easier.

Figure 18. A resident who kept talking to herself, sitting at the counter in the kitchen in the “S” residence.

Although there were various seating options, where people sat was usually designated by the staff. According to the Program Director, assigned seating gave residents a sense of familiarity and thus enhanced their independence; however, residents were free to change seats if they liked. In the “K” residence, one resident used the bathroom during mealtime and when he returned, he chose to move to another table. The staff helped him to move his silverware and dishes to the new table.

Use of the toilet

Independence. Common bathrooms are located near each activity space in both residences, making them easier for residents to find on their own. However, in the “S” residence, the bathrooms were locked because part of the room was used to store cleaning chemicals that were dangerous. Residents had to ask care partners to open the door, which limited their independence. Before lunch, for example, when the Discovery Program in the sunroom finished, several residents said they wanted to use the bathroom but found that they couldn’t open the door. The care partner running the program opened the door, stayed close by, reminded residents that there was someone inside, and asked others to wait (see Fig. 19). The sign indicating the room’s use was only a small plate with a single word that hung on the door, which also limited independence for those residents who could no longer read or had limited vision (see Fig. 20).

Figure 19. Residents had to ask someone to open the bathroom in the “S” residence.

Figure 20. Signage on bathroom doors was too small to read in the “K” residence.

In the “K” residence, bathrooms were always open and available to residents. During the observation period, two residents were witnessed saying that they would like to use the toilet, and then going themselves, independent of any assistance, even though the bathroom was out of their immediate sight. Unlocked bathrooms encourage residents to use them independently as part of their routine, while locked doors discourage independent use.

In both residences, the toilets could not be seen from the head of the bed in most bedrooms, which also might limit independent use. Now a commonly recommended design feature in dementia residences, this deserves further investigation.

Living units

Freedom. All residents are encouraged to personalize their living spaces. Memory frames with photos and other reminiscence objects hang beside each resident’s door. Residents, their family members, and staff all worked together to create these personalized memory frames (see Fig. 21). Furniture is not provided, except for a built-in closet. Residents and family members brought furniture, lamps, and cherished photos and decorations to make the rooms more homelike (see Fig. 22). In the “S” residence, one resident said she would like to have a larger room if possible, which could imply that the space was not large enough for her to bring in the furniture she would like. Storage space in the bathroom was insufficient in both residences. The sink counter was small and some residents or their families added a small table for personal items (see Fig. 23).

Figure 21. Memory frame at the door of a unit in the “S” residence.

Figure 22. Personalized bedroom in the “S” residence.

Figure 23. Bathroom with narrow counter may limit the freedom to put personal items there(photo taken in “S” residence.

Control. The design of the shared units in both residences insures control over privacy. In the “S” residence, each bedroom in each of the shared unit has its own door and window with a common entry space with sofas from which residents have access to the bathroom. (see Fig. 24). Residents never need to travel through the sleeping space of the person with whom they share the bathroom; each has a fully private dwelling space. In the shared units in the “K” residence, dwelling spaces are separated by a wall that provides acoustic and visual privacy. However, because of the absence of doors in these spaces, residents are able to look into their roommate’s space when walking in and out of the unit or bathroom. This lowered the level of control over privacy.

During the observation period, most unit doors were kept closed. The Executive Director said that those residents who wanted to lock their doors had keys to do so, though all doors shared the same lock and for safety reasons staff always have a key. This policy ensures that residents have a sense of control, and guaranteed safety.

Choice. Both residences provided a mix of private and shared units, with various floorplans. Residents and their families can select units based on their living preferences, as well as their budgets. They can also change units as their preferences shift. In the “K” residence, residents are also allowed to “age in place” as their care level changes. However, when someone begins to require two-person transfers, they typically move to the first floor in the “K” residence, which has a higher staff ratio. Since most of the units were already occupied, newcomers might not receive their first choice right away. In two-person rooms, roommates were rarely chosen by the residents themselves, and instead were matched based on availability, though the staff did take into account resident compatibility. In the “S” residence, one resident expressed that if she could, she would like to change roommates.

Figure 24. Entry space in a shared unit in the “S” residence that provided a privacy buffer zone.

Wayfinding

Independence. Circulation in both residences was generally simple and clear, following a process called “natural mapping” that made it easy for residents to independently find their way. However, in the “S” residence, the activity and dining rooms are located separately along the same corridor. Some residents found it difficult to locate the other areas when they were leaving one of the spaces. For example, before lunch, several residents from the Discovery group needed to move to the dining room. The Program Director told the residents to “go down the corridor and I will see you in a few minutes.” The residents were confused because they could not see the dining room in front of them. (It was to one side of the corridor.) Neither resident moved until another care partner came along and accompanied them to the dining room.

In the “K” residence, activity spaces and the dining room are separated, yet close to one another. Half walls separated the activity spaces from the corridor, enabling residents to preview the public space from the hallway. Movement from one place to another happened more naturally and independently in the “K” residence (see Fig. 25). In addition to a simple layout, both residences used landmarks to help with wayfinding. Photos and paintings on the wall, corners with reading material, the fireplace, and the open kitchen all worked together to form identifiable landmarks (see Fig. 26).

Discussion

In summary, both residences provided strong support for residents to exercise freedom, independence, control, and choice. Programs, policies, and the space worked together to contribute to resident autonomy. The daily flow provided residents the freedom to choose from planned programs being offered or just to engage in spontaneous activities of their own such as reading articles, doing puzzles or listening to music with earphones.

Figure 25. Half-walls support previewing and wayfinding independence in the “K” residence.

Figure 26. Fireplace serves as a landmark at the end of the corridor in the “S” residence.

Various common spaces and corners for self-initiated activities also supported freedom of choice. The exercise of choice with regards to what, when, and where to eat were promoted by the care partners every day and supported by the residents’ kitchen that offered access to appliances and different types of seating for meals. The accessibility of the garden, safety measures, and other aspects also supported independence.

Comparing the “K” with the “S” residence, the former offered stronger support for resident autonomy than the latter. Taking advantage of a higher staff ratio and larger indoor area, the “K” residence provided more choices in terms of parallel programs, and offered smaller group sizes in activities like strolling, playing music, and the Culinary Club. These allowed residents to spend time on their individual interests.

Conclusion

This study explored the relationship between physical environment and resident autonomy in residences for people living with dementia. This research was based on a full day of systematic observation of activities in two assisted living residences. Methods employed included observation, applying a checklist, open-ended interviews, collecting photographs, and analyzing building layouts. The following activities were observed: planned programs, self-initiated hobbies, garden use, dining, using the bathroom, and wayfinding. Both outdoor (garden) and indoor (common spaces, corridor, living units) environments were observed. Four domains of autonomy served as the bases of analysis: freedom, independence, control, and choice. The physical environment appeared to play an important role in either supporting or limiting resident autonomy. Care practices, programs, and policies were also critical in shaping daily routines, providing alternative opportunities (affordances), influencing resident freedom of choice, and increasing their independence and autonomy. The physical setting was equally important in its effect on resident autonomy, including building layout (sightlines and circulation, variety of spaces), space arrangement (room layouts, enclosure of the space, designs of transition spaces), and other details (e.g., available appliances, landmarks, props for activities). The staff’s perceptions of resident safety tend to play an important role in limiting freedom and independence, as well as creating opportunities for autonomy, and must be taken into consideration when designing both physical structures and care programs.

Implications for Practice

Richness of activity spaces. To enable choice of activity for people living with dementia, the quantity of indoor activity spaces must exceed the maximal number of structured activities happening at the same time, and guarantee spaces for self-initiated activities. Corners and sitting spaces along the corridor can be arranged as comfortable alcoves for individual activities, like reading and listening to music. Alcoves and seats surrounding group activity spaces for residents who want to watch an ongoing activity can also be arranged, to afford residents control over their level of engagement. The same requirement must be considered in outdoor environment design.

Accessibility and visibility. Independence of wayfinding provides both a sense of capability as well as a sense of environmental control. A half wall between activity spaces and corridor can enable visual accessibility and facilitate wayfinding. Locating important spaces like activity rooms, dining areas, and toilets close to each other can help residents find their way more independently. A home-like kitchen accessible to residents can also support exercising residents’ ability to help with household activities independently.

Freedom by minimizing risk. In order to provide a greatest level of freedom for residents living with dementia, safety issues need to be carefully taken into consideration. For example, the freedom to access outdoor spaces is best facilitated when the garden is fully secured and surveillance is easy for staff from their offices and the core activity areas where they work.

Acknowledgments

The authors deeply appreciate the assistance of the residents and staff at the two residences, who made this report possible, and the valuable input provided by Dr. Susan Rodiek.

References

Bland, R. (1999). Independence, privacy and risk: Two contrasting approaches to residential care for older people. Ageing and Society, 19(5), 539-560. doi:10.1017/s0144686x99007497

Boyle, G. (2005). The role of autonomy in explaining mental ill-health and depression among older people in long-term care settings. Ageing and Society, 25(5), 731-748. doi:10.1017/s0144686x05003703

Cohen, U., & Weisman, G. D. (1991). Holding on to Home: Designing Environments for People with Dementia. Baltimore, MD: Johns Hopkins University Press.

Cohen-Mansfield, J., Werner, P., Weinfield, M., Braun, J., Kraft, G., Gerber, B., & Willens, S. (1995). Autonomy for nursing home residents: The role of regulations. Behavioral Sciences & the Law, 13(3), 415-423. doi: 10.1002/bsl.2370130309

Collopy, B. J. (1988). Autonomy in long term care: Some crucial distinctions. The Gerontologist, 28, 10-17. 10.1093/geront/28.Suppl.10

Doyal, L., & Gough, I. (1991). A Theory of Human Need. New York, NY: Guilford Press.

Lawton, M. P., Weisman, G. D., Sloane, P., Norris-Baker, C., Calkins, M., & Zimmerman, S. I. (2000). Professional environmental assessment procedure for special care units for elders with dementing illness and its relationship to the therapeutic environment screening schedule. Alzheimer Disease & Associated Disorders, 14(1), 28-38.

Li, J. PhD thesis, Tsinghua University (forthcoming).

Namazi, K. H., & Johnson, B. D. (1992). Pertinent autonomy for residents with dementias: Modification of the physical environment to enhance independence. American Journal of Alzheimer's Care and Related Disorders & Research, 7(1), 16-21.

Regnier, V. (2003). Design for Assisted Living: Guidelines for Housing the Physically and Mentally Frail. Hoboken, NJ: John Wiley & Sons.

Torrington, J., Barnes, S., McKee, K., Morgan, K., & Tregenza, P. (2004). The influence of building design on the quality of life of older people. Architectural Science Review, 47(2), 193-197. doi:10.1080/00038628.2004.9697043

van der Roest, H. G., Meiland, F. J., Maroccini, R., Comijs, H. C., Jonker, C., & Dröes, R. M. (2007). Subjective needs of people with dementia: A review of the literature. International Psychogeriatrics, 19(3), 559-592. doi:10.1017/S1041610206004716

van Hoof, J., Janssen, M. L., Heesakkers, C. M. C., van Kersbergen, W., Severijns, L. E. J., Willems, L. A. G., . . . Nieboer, M. E. (2016). The importance of personal possessions for the development of a sense of home of nursing home residents. Journal of Housing for the Elderly, 30(1), 35-51. doi:10.1080/02763893.2015.1129381

van Hoof, J., van Dijck-Heinen, C., Janssen, B., & Wouters, E. (2014). The environmental design of residential care facilities: A sense of home through the eyes of nursing home residents. International Journal for Innovative Research in Science & Technology, 1(4), 57-69.

Zeisel, J. (2006). Inquiry by design: Environment/behavior/neuroscience in architecture, interiors, landscape, and planning. New York, NY, US: W.W. Norton & Co.

Zeisel, J. (2009). I'm Still Here: A New Philosophy of Alzheimer's Care. New York, NY: Penguin/Avery.

Zeisel, J. (2013). Improving person-centered care through effective design. Generations, 37(3), 45-52.

Zeisel, J., Hyde, J., & Levkoff, S. (1994). Best practices: An Environment Behavior (EB) model for Alzheimer special care units. American Journal of Alzheimer's Care and Related Disorders & Research, 9(2), 4-21. doi: 10.1177/153331759400900202

Zeisel, J., & Tyson, M. (1999). Alzheimer’s treatment gardens. In Marcus, C. C., & Barnes, M. (Eds.). (1999). Healing gardens: Therapeutic benefits and design recommendations (Vol. 4) (pp.437-504). Hoboken, NJ: John Wiley & Sons.

Annotate

Sustainable Design: Full Papers
CC BY-NC-ND 4.0 | Proceedings of the Environmental Design Research Association 50th Conference
Powered by Manifold Scholarship. Learn more at
Opens in new tab or windowmanifoldapp.org